#12107

Apartment in Germasogeia, Limassol

Germasogeia, Limassol

€1,100,000 + VAT
  • 4Bedrooms
  • 2Bathrooms
  • 3Toilets
  • 150 m2Covered Area
  • 40 m2Covered Veranda
  • 79 m2Uncovered Veranda
  • PenthouseFloor
Nestled in the heart of Yermasogia, one of Limassol’s most sought-after areas, the residence redefines contemporary coastal living. This exclusive gated complex features two architecturally identical buildings that creating a harmonious balance of design and elegance. Situated just 2.5 km from the beach and less than 1 km from the highway, residents enjoy seamless access to the city’s business hub, seafront, and major destinations across Limassol.

Offering a selection of 1, 2, and 3-bedroom apartments, as well as four-bedroom penthouses with private roof terraces, the residences reflects the refined lifestyle of those who call it home. Every detail, from the architectural symmetry to the sophisticated interiors, has been thoughtfully crafted to inspire modern comfort and timeless appeal.

Step into a realm of comfort and functionality with this spacious abode, meticulously crafted to elevate your quality of life. Designed with both practicality and style in mind, the open-plan living room and dining area beckon for cherished moments with family and friends, offering an ideal setting for both intimate gatherings and lively social evenings. Seamlessly integrated, the modern kitchen boasts an ergonomic layout, promising a delightful culinary journey every day.

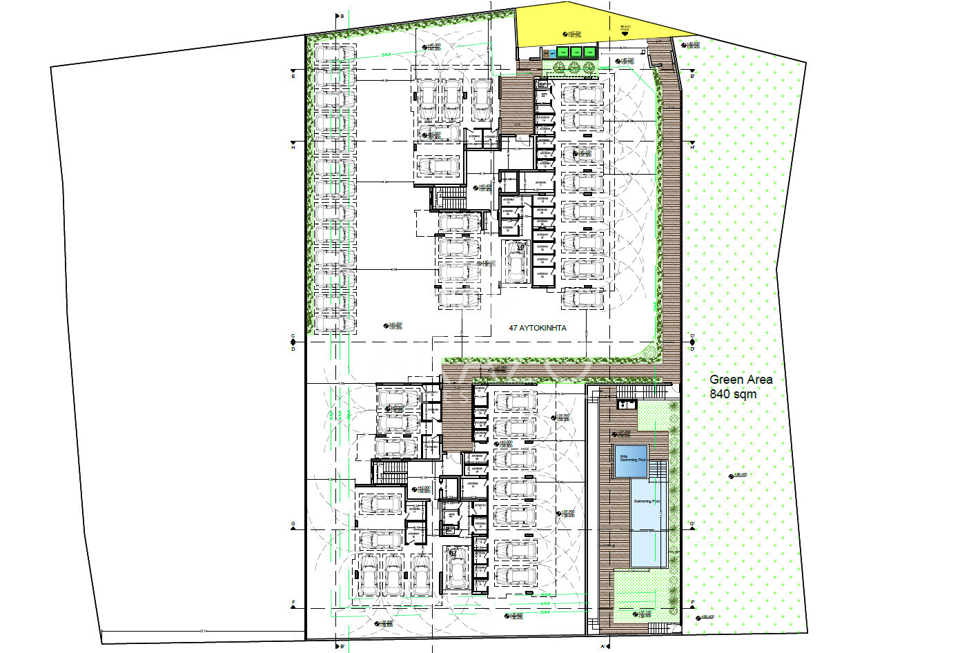
Residents can enjoy moments of relaxation by the swimming pool or unwind in the dedicated children’s pool, offering a safe and welcoming space for families. The fully equipped gym provides a private and convenient way to stay active without leaving the comfort of home.

Facilities

  • Aircondition, Provision
  • Childrens playground
  • Elevator
  • Gated complex
  • Gym
  • Heating, Underfloor
  • Parking, Covered
  • Pool, Communal, Overflow
  • Solar water heater
  • Storage

Features

  • Combined kitchen and dining area
  • Easy access to main roads
  • En suite shower
  • Fitted wardrobes
  • Garden
  • Granite countertops
  • Guest WC
  • Modern design
  • Near amenities
  • Near bus route
  • Open plan
  • Pipe-in-pipe plumbing system
  • Pressurized water system
  • Quiet area
  • Thermal insulation
  • Veranda

Distances

  • Amenities:150 m
  • Airport:61 km
  • Sea:2.5 km
  • Public transport:500 m
  • Schools:2 km
  • Resort:2.5 km
Any areas, energy class, measurements or descriptions are approximate and for guidance only. All information provided by Arazo Estates Ltd should be independently verified and confirmed by interested party. No guarantee, warranty or representation of any kind is made regarding accuracy of any data mentioned herein. All photographs are provided for guidance only.

Email us

Thank you for your message! We will get back to you as soon as possible.
Protected by reCAPTCHA. Google Privacy Policy and Terms of Service apply.

Send message
Share