#11791

Apartment in Dekelia road, Larnaca

Pyla, Larnaca

€535,000 + VAT
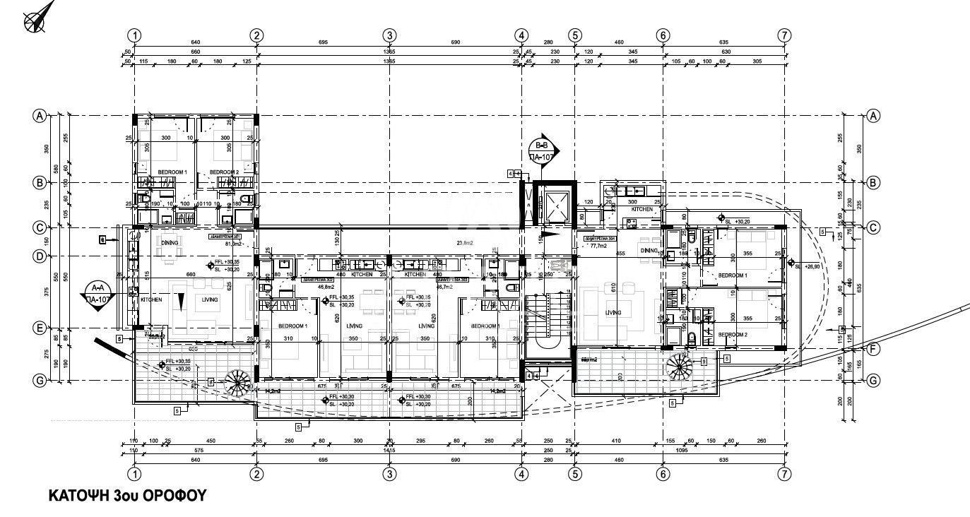
  • 3Bedrooms
  • 2Bathrooms
  • 2Toilets
  • 2027Year of Construction
  • 81 m2Covered Area
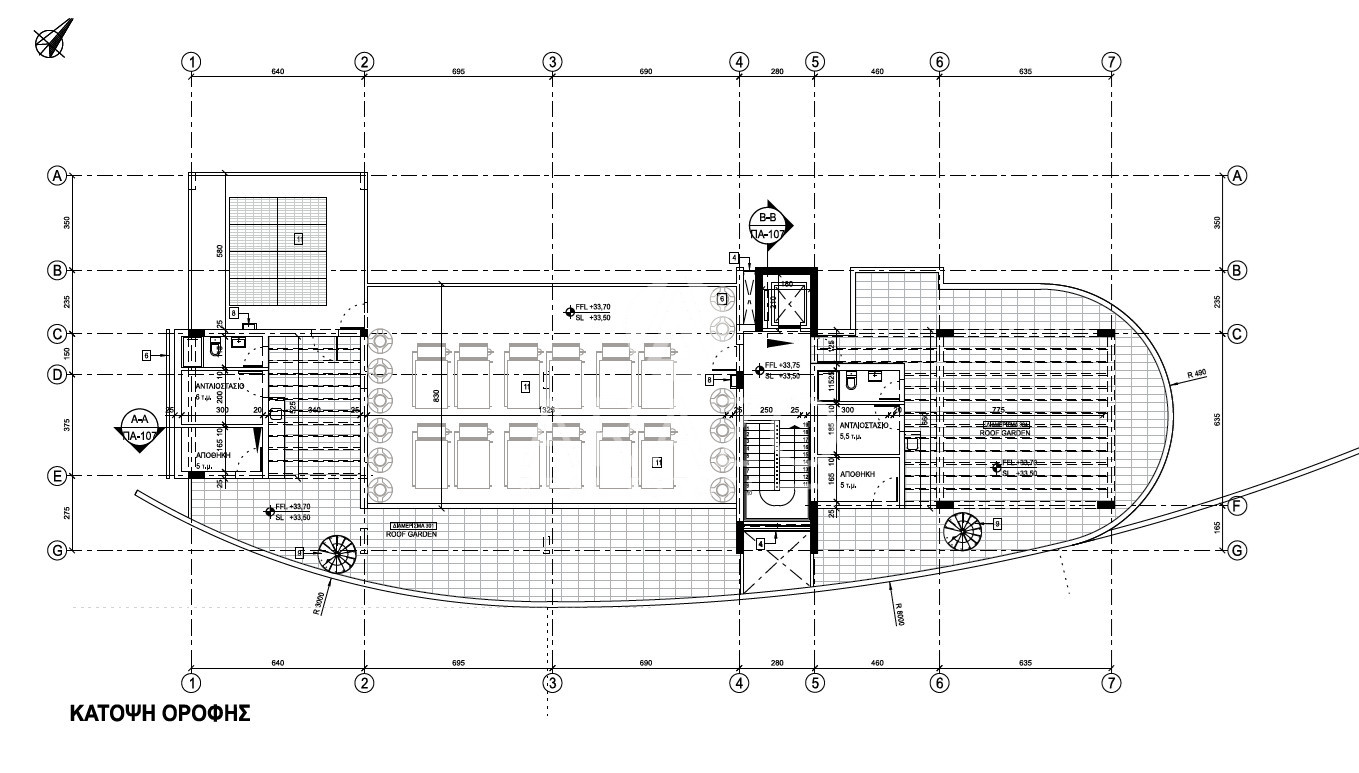
  • 78 m2Roof Garden
  • 14 m2Covered Veranda
  • PenthouseFloor
  • Unfurnished
A residential building in a prime location near all amenities in the best tourist area. A beautifully designed, modern residential building for sale, located on Dhekelia Road, Larnaca, Cyprus — within walking distance of a Blue Flag beach. Ideally situated in a rapidly developing tourist-residential area, the project offers excellent investment potential and is surrounded by numerous amenities, making it an attractive location for both residents and investors.

The residence offers a unique investment opportunity with high buy-to-let potential. The area is experiencing continuous growth and development, making it an increasingly desirable destination for both local and international buyers. Its strategic location combines convenience, leisure, and strong potential for capital appreciation.

The development consists of modern 1-, 2-, and 3-bedroom apartments, each featuring private covered parking. Two top-floor apartments include exclusive roof gardens, offering an elevated outdoor living experience. These roof gardens provide additional space for relaxation, entertainment, and enjoying the beautiful surroundings.

Facilities

  • Aircondition, Provision
  • Parking, Covered
  • Elevator
  • Storage

Features

  • Bright
  • Combined kitchen and dining area
  • Easy access to highway
  • Easy access to main roads
  • En suite shower
  • Fitted wardrobes
  • Modern design
  • Near amenities
  • Near bus route
  • Open plan
  • Roof garden
  • Sea view
  • Veranda
  • Walking distance to beach

Distances

  • Amenities:100 m
  • Airport:23 km
  • Sea:200 m
  • Public transport:50 m
  • Schools:1.5 km
Any areas, energy class, measurements or descriptions are approximate and for guidance only. All information provided by Arazo Estates Ltd should be independently verified and confirmed by interested party. No guarantee, warranty or representation of any kind is made regarding accuracy of any data mentioned herein. All photographs are provided for guidance only.

Email us

Thank you for your message! We will get back to you as soon as possible.
Protected by reCAPTCHA. Google Privacy Policy and Terms of Service apply.

Send message
Share