#11563

Detached Villa in Oroklini, Larnaca

Oroklini, Larnaca

€335,000 + VAT
  • 3Bedrooms
  • 2Bathrooms
  • 3Toilets
  • 2026Year of Construction
  • 137 m2Covered Area
  • 204 m2Plot Area
  • 16.16 m2Covered Veranda
  • 97 m2Garden
  • Unfurnished
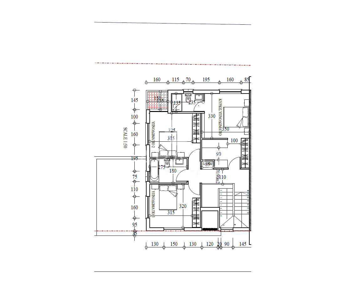
For sale is a modern, off-plan detached villa offering a comfortable internal space of 137 m² in the sought-after area of Oroklini. This thoughtfully designed home features three spacious bedrooms and two bathrooms, ideal for families or those seeking extra space for guests or a home office.

The property's modern layout provides flexible living, while large windows ensure plenty of natural light throughout. The villa is offered unfurnished, allowing future owners to create a home tailored to their own style and needs. Construction is due for completion in 2026, giving buyers the opportunity to move into a brand-new, purpose-built residence.

Oroklini is known for its tranquil environment, blending peaceful residential living with excellent access to nearby amenities including shops, restaurants, schools, and leisure facilities. The area is popular for its green landscapes and is only a short drive to the beach, making it perfect for both relaxation and convenience.

This property is a smart investment in a growing neighborhood.

Facilities

  • Aircondition, Provision
  • Parking, Covered

Features

  • Next to green area
  • Veranda
  • Quiet area
  • En suite shower
  • Modern design
  • Near bus route
  • Near amenities
  • Open plan
  • Garden
  • Fitted wardrobes
  • Combined kitchen and dining area
  • Kitchen island

Distances

  • Amenities:600 m
  • Airport:20 km
  • Sea:3 km
  • Public transport:600 m
  • Schools:1.3 km
  • Resort:3 km
Any areas, energy class, measurements or descriptions are approximate and for guidance only. All information provided by Arazo Estates Ltd should be independently verified and confirmed by interested party. No guarantee, warranty or representation of any kind is made regarding accuracy of any data mentioned herein. All photographs are provided for guidance only.

Email us

Thank you for your message! We will get back to you as soon as possible.
Protected by reCAPTCHA. Google Privacy Policy and Terms of Service apply.

Send message
Share